Aviana Village
The Orchard consists of 31 single family detached homes featuring two floor plans with a mix of architectural styles. Each home has solar panels pre-installed.
Features Include:
- Two Floor Plans
- Spacious floor plans designed for open living
Rent Info
Call 909-203-1550
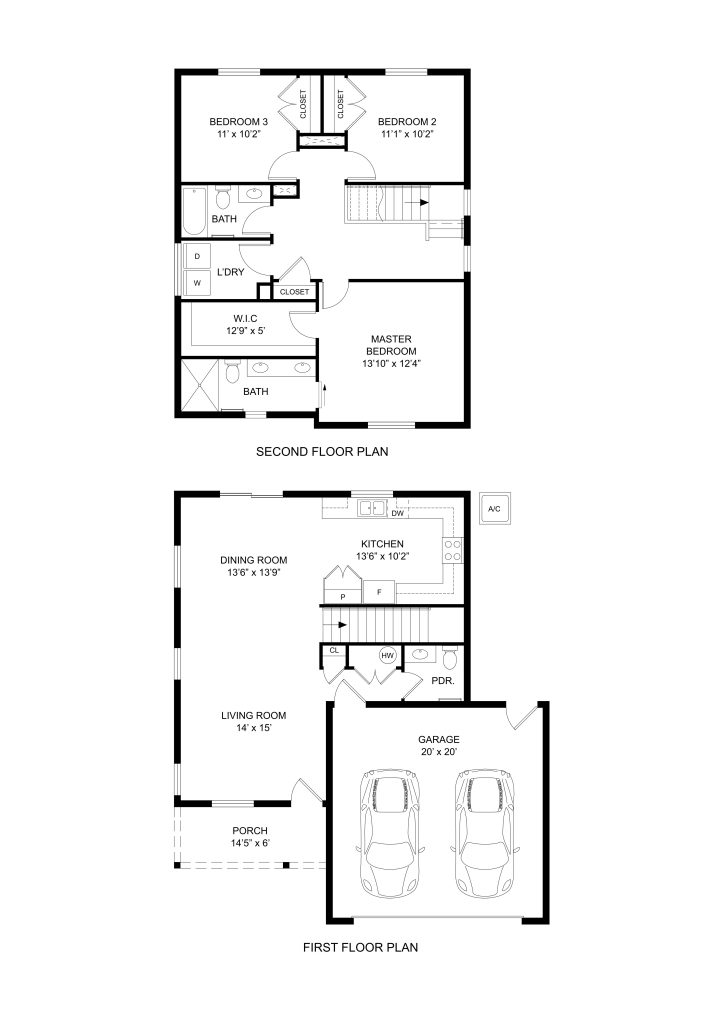
Residence 1
3 Bed, 2.5 Baths1,600 SF
Floor Plan – Residence 1

Residence 2
3 Bed, 3 Baths1,776 Sq Ft
Floor Plan – Residence 2

Amenities
- Tot Lot / Play Structure
- Green breeze way
All for owners benefit and maintained by the HOA.
Utilities
- Water – Yucaipa Valley Water District
- Trash – Burtec
- Spectrum Internet
- Power – Monte Vista Solar, SCE
Schools
-
Ridgeview Elementary
11021 Sunnyside Dr
Yucaipa, CA 92399 -
Parkview Middle School
34875 Tahoe Dr
Yucaipa, CA 92399 -
Yucaipa High School
33000 Yucaipa Blvd
Yucaipa, CA 92399

